• 5825 Dove Nest Road, Gulf Breeze, FL 32563 Main Photo

5825 Dove Nest Road
Gulf Breeze, FL 32563

$429,900

32 Total Photos [Click to View All]

Listing Details

  • $429,900
  • MLS# 995659
  • Type Residential - Single Family
  • Status Active
  • 4
    Bedrooms
  • 3 full
    Bathrooms
  • 2,560
    Square Feet
  • 0.130 acres
    Lot Size
  • 2026
    Year Built

Listed By

Agency Name: DR Horton Realty of Northwest Florida LLC

Shown By

Agent Name: Tammy & Eric Doverspike
Agent Phone: Cell: (850) 291-6352
Agency Title: Levin Rinke Realty

IDX logo

Home Value Estimate


Description

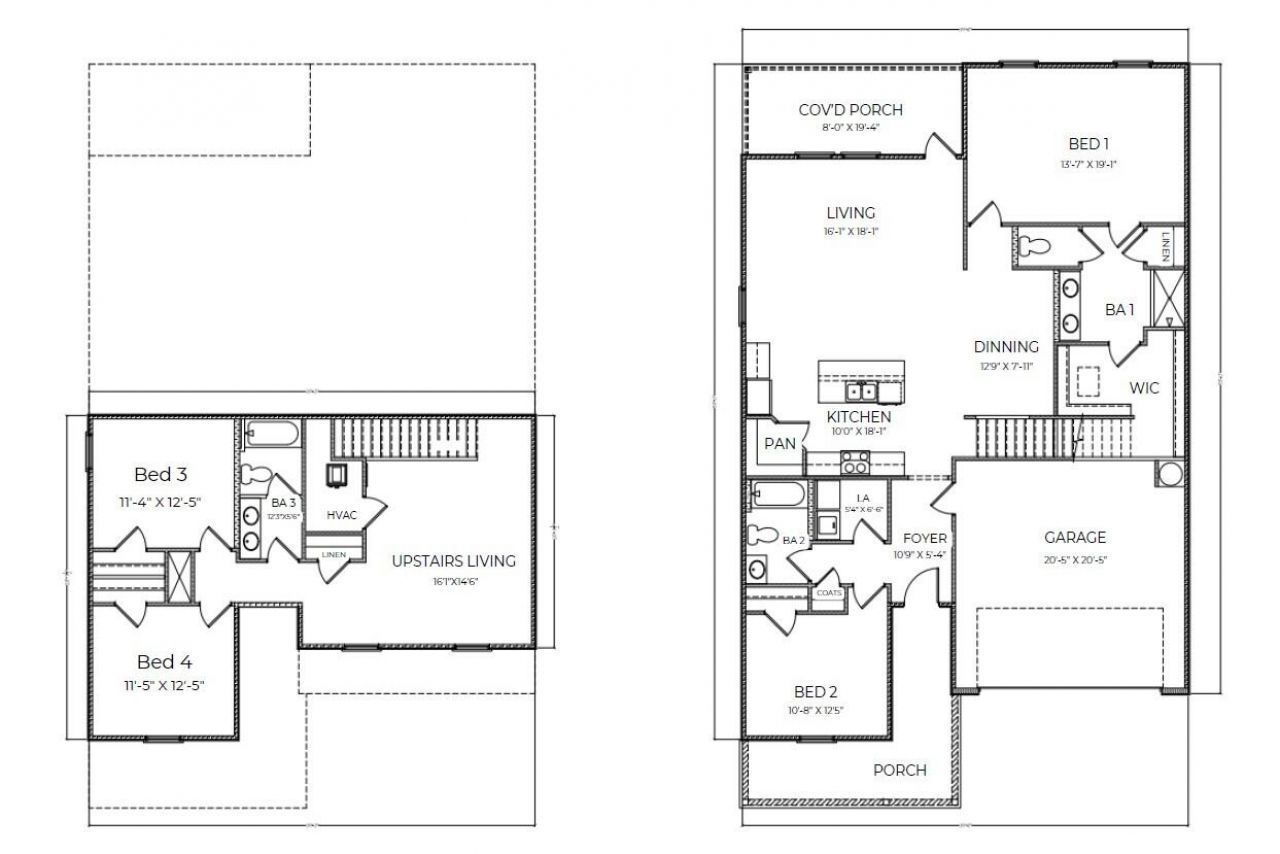
Welcome to Deer Ridge Crossing in Gulf Breeze, FL! The stunning Ozark floor plan is a well-designed 2 story model with 2 bedrooms ''&'' a living room on ''EACH'' level. Bedroom 1 on the first floor offers a spacious walk-in closet, & adjoining bath has a double vanity, large shower, linen and water closet. Stunning Quartz countertops in kitchen and baths, all stainless-steel appliances, gorgeous EVP wood look flooring & plush carpet in the bedrooms. The Smart Home Connect System includes several Smart Home convenient devices. Upscale home with great curb appeal. Convenient Midway location. Must see! ALL LISTING pictures, colors, features,...read more

Features

  • Auto Garage Door Opn
  • Dishwasher
  • Disposal
  • Microwave
  • Smoke Detector
  • Smooth Stovetop Rnge
  • Stove/Oven Electric
  • Warranty Provided
  • Central Air
  • Floor Vinyl
  • Floor WW Carpet New
  • Heat Pump Air To Air, Heat Pump Wtr Air 2+, Central
  • 2.0 Stories
  • Built in 2026

Login to My Homefinder

Pixel